Zur Navigation wechseln Zum Inhalt wechseln Zum Footer wechseln

PROJEKT: MFH am Galenbecker See, 25 km von Ueckermünde entfernt ! Aufteilung in 5 Eigentumswohnungen

ImmoNr
318_HW_visual
Objektart
Haus
Objekttyp
Mehrfamilienhaus
Vermarktungsart
Kauf
PLZ
17379
Ort
Heinrichswalde
Land
Deutschland
Wohnfläche
ca. 358 m²
Grundstücksgröße
ca. 1.383 m²
Anzahl Zimmer
13
Anzahl Badezimmer
5
Anzahl Terrassen
1
Befeuerung
Gas
Etagenzahl
3
Terrasse
Ja
Kaufpreis
608.850,00 €

Zur Immobilie

Bei dem Objekt handelt es sich um ein sehr schönes Mehrfamilienhaus
mit 5 Wohneinheiten.
Auf dem Grundstück befindet sich ein Nebengelass, welches abgerissen wird.
Auf der linken Seite des Haupthauses wurde eine großzügige Terrasse angebaut.
Das Haus hat eine sehr gute Grundsubstanz, der Keller ist absolut trocken.
Die Mieter kümmern sich sehr vorbildlich um das Haus und regeln fast alle
handwerklichen Dinge, die im Alltag anfallen, wie z.B. Pflege des Grundstücks, selber.

Am Haus sind folgende Maßnahmen geplant:

– Schaffung eines Außen-Zugangs zur Zentralheizung mit
Warmwasseraufbereitung
– Austausch der beiden Hauseingangstüren mit Anbringen
eines Windfangs
– Erneuerung des Eingangsbereiches zur DG-Wohnung
– Erneuerung der Dach-Fenster in den Dachschrägen
– Schaffung eines Spielplatzes
– Schaffung von 5 PKW Stellplätzen
– Abtrennung des hinteren Grundstücksbereichs
– Streichen des Treppenhauses und des Hauses
– Erneuerung der Briefkastenanlage
– Beseitigung aller schadhaften Salpeterstellen im und am
Gebäude

A+
< 30
A
30 – 50
B
50 – 75
C
75 – 100
D
100 – 130
E
130 – 160
F
160 – 200
G
200 – 250
H
> 250
Nutzungsart
Wohnen
Baujahr lt. Energieausweis
2016
Endenergiebedarf
118 kWh/(m²a)
Energieausweis
Bedarfsausweis
Energieausweis gültig bis
26.05.2028
Energieeffizienzklasse
D
wesentlicher Energieträger
Gas

Lage & Umgebung – Wo Ruhe, Natur und Freiheit sich begegnen

Heinrichswalde ist einer dieser seltenen Orte, die sofort das Gefühl vermitteln:
Hier kann man ankommen. Hier kann man aufatmen.

Die Dorfstraße 10 liegt in einer kleinen, friedlichen Ortschaft in der Region Vorpommern-Greifswald – umgeben von Wiesen, Feldern, ursprünglichen Wäldern und klarer Luft. Ein idealer Rückzugsort für Menschen, die Ruhe, Natur und echte Lebensqualität suchen, ohne auf eine gute Anbindung verzichten zu müssen.

Naturschönheit direkt vor der Haustür
Die gesamte Umgebung lädt ein zu einem Lebensstil, der in großen Städten kaum noch möglich ist:
– Der Galenbecker See – einer der schönsten Seen der Region – nur wenige Minuten entfernt.
– Unberührte Landschaft mit endlosen Wegen für Spaziergänge, Jogging oder Fahrradtouren.
– Sternenklare Nächte – ein Highlight für Naturliebhaber.

Nur ca. 25 Minuten bis zum Strand in Ueckermünde
Ein wahrer USP der Lage: Der Ostseestrand von Ueckermünde ist in knapp 25 Minuten erreichbar.
– Feiner Sandstrand
– Strandpromenade
– Restaurants & Cafés
– Bootshafen & Wassersportangebote
– Historische Altstadt

Anbindung & Mobilität – angenehm unkompliziert
– Bahnhof Jatznick: ca. 5 Minuten entfernt → direkte Verbindungen nach Pasewalk, Ueckermünde, Berlin.
– Regionalbahn 3: Verbindung nach Berlin-Gesundbrunnen.
– Autobahn A20: schnelle Routen nach Berlin, Rostock oder Usedom.
– Ferdinandshof (10 Minuten): alle Einrichtungen des täglichen Bedarfs.

Dinge des täglichen Lebens – schnell erreichbar
In Jatznick, Ferdinandshof und Ueckermünde befinden sich:
Supermärkte, Ärzte, Apotheken, Schulen, Kitas, Restaurants und Dienstleistungen.

Lebensgefühl & Vorteile der Lage
– Ruhe, Natur, Freiheit und Ostseenähe.
– Perfekt für Familien, Pendler oder Homeoffice.
– Sicher, freundlich und gemeinschaftlich geprägt.

Heinrichswalde ist kein Ort, den man nur sieht – es ist ein Ort, den man spürt.

17379 Heinrichswalde, Deutschland

PROJEKT: MFH am Galenbecker See, 25 km von Ueckermünde entfernt ! Aufteilung in 5 Eigentumswohnungen

Diese schöne kleine Wohnanlage wird nach WEG aufgeteilt, das Grundstück wird ebenfalls geteilt.

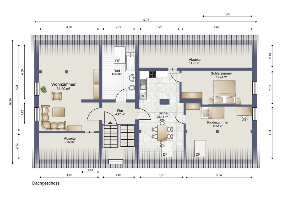
Wohnungsliste – Objektübersicht

WE 1: ca. 72 m², 3 Zimmer – 118.800 €

WE 2: ca. 47 m², 2 Zimmer – 77.550 €

WE 3: ca. 51 m², 2 Zimmer – 84.150 €

WE 4: ca. 72 m², 3 Zimmer – 118.800 €

WE 5: ca. 127 m², 3 Zimmer – 209.550 €

In den Kaufpreisen ist je ein Stellplatz enthalten

Mietgarantie von 282,- (47 m²) bis 762,- (127 m²)

Ihr Ansprechpartner

Ralph Ünal

Herr Ralph Ünal

ImmerGrünFinanz und Immobilieninvestment GmbH

Tel.:
0176-21701995
E-Mail:
info@immergruenfinanz.de

Margaretenstraße 10
14193 Berlin

Ihre Anfrage zu der Immobilie „PROJEKT: MFH am Galenbecker See, 25 km von Ueckermünde entfernt ! Aufteilung in 5 Eigentumswohnungen“ (318_HW_visual)

* Pflichtfelder